Nagrađivani arhitektonski biro Carl Turner Architects je nedavno predstavio jedinstveni projekat kuće koja rešava sve veći problem poplava u Velikoj Britaniji i u drugim delovima sveta.

Biro Carl Turner Architects je projektovao Plutajuću kuću koja sarađuje sa svojim okruženjem, umesto da se trudi da radi protiv njega. Projekat je delimično plutajuća kuća, delimično čamac, i 100 odsto samodovoljna, ugljenično neutralna kuća koja generiše sopstvenu električnu energiju sa ugrađenim solarnim panelima.

Plutajuća kuća je stvorena kao odgovor na izazov koji je postavila kompanije Paper Houses. Izazov je pozvao arhitekte i dizajnere da se pozabave sa nedovoljno korišćenim vodotokovima u Velikoj Britaniji i sve većim problemima poplava koji se javljaju u stambenim naseljima.

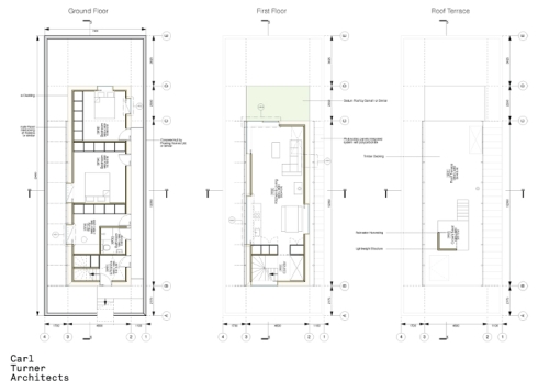
Dizajn Plutajuće kuće je prilagodljiv tako da dom omže biti podržan na velikom broju različitih struktura, u zavisnosti od okruženja. Lagani dom može biti izgrađen na vrhu čvrste baze u poplavnom području, na šipovima, ili na plutajućoj bazi koja je više slična splavu.

Unutar doma, životni prostor je konstruisan od super-izolovane građe, i on meri oko 14 metara dužine sa 4,5 metara širine. Bašte su takođe inkorporirane u projekat, u dvorištu, kao i na nivou krova.

U pogledu izgradnje, mnoge opcije su dostupne potencijalnim vlasnicima kuća, uključujući 3D štampanje i CNC glodalice. Opšta ideja je da kuća bude izgrađena od komponenti, od strane vlasnika ili izvođača, i zatim bi komadi mogli da se montiraju na lokaciji gradnje za samo nekoliko nedelja.































;