Ovaj rad bavi se prostornim koncepima primene temperaturnih razlika vazduha kao i samim strujanjem vazduha u cilju iskorišćavanja prirodne ventilacije radi temperiranja objekata, ili pak razlikama u pritisku, koje su opet, uslovljene varijacijama temperatura.
U četiri poglavlja objašnjeni su fenomeni nastajanja vazdušnog kretanja, prikazani su i analizirani primeri izgrađenih „energetski efikasnih“ objekata i arhitektonsko-prostorni elementi koji im najviše pogoduju.

višeporodična stambena zgrada atrijumskog tipa, izvor: www.dmcihomes.net
Ovaj tekst je četvrta od pet celina seminarskog rada studenta arhitekture Vladimira Simovića na temu Klimatizacije objekata. Na ovoj stranici dato je treće poglavlje – Atrijumski objekti (linkovi ka ostalim delovima u žutom polju).
|
Original teksta:
Sadržaj originalnog rada:
|
3. ATRIJUMSKI OBJEKTI
Realna situacija prilikom izučavanja efekta dimnjaka na atrijumske objekte uslovljava nas da obratimo pažnju na različite parametre prilikom sagledavanja situacije u cilju najboljeg iskorišćenja radi toplotnih dobitaka.
Pažnju prvo moramo obratiti na uticaj efekta dimnjaka na atrijumske objekte, zatim na uticaje vetra, da bi na kraju došli do situacije u kojoj moramo sagledati kombinovani uticaj dva pomenuta efekta da bismo videli kako se raspodela pritisaka manifestuje u realnom vremenu.
3.1 Efekat dimnjaka na atrijumske objekte
Na slici 3a šematski su prikazani preseci kroz višespratnu atrijumsku zgradu sa uticajem temperature (efekat dimnjaka) na raspodelu pritisaka u periodu dogrevanja zimi, kao i hlađenja u toku letnje noći.
Nagib linije razlike pritisaka jeste nejednak zbog drugačijih temperaturnih razlika između pojedinih prostora, pod pretpostavkom njihovog stalnog proporcionalnog odnosa. Iz ovog se može konstatovati da je glavni problem ventilacije višespratnih objekata sa zatvorenim jednozapreminskim vazdušnim prostorom koji se pruža po celoj visini objekta, mešanje vazduha (mirisa) između prostorija.
U toku zime i letnje noći (hlađenje noću), tj. više temperature između unutrašnjeg i spoljašnjeg prostora, dolazi do istrujavanja vazduha iz donjih etaža i njegovog ulaženja u gornje kroz atrijumski prostor.
U slučaju da se napravi otvor u gornjoj polovini atrijuma ili se on izdigne iznad zgrade, podiže se NNP i povećava udeo sniženog pritiska po njegovoj visini. (17) Linije razlike pritisaka pomeraju se ka središtu atrijuma i dolazi do povećanja istrujavanja vazduha iz donjih etaža, dok će se njegovo strujanje u gornje smanjiti. (slika 3b)
U slučaju da se napravi otvor u donjoj polovini atrijuma ili se on spusti u podzemni kanal, NNP se takođe spušta i povećava udeo povećanog pritiska po njegovoj visini. (18) Linije razlike pritisaka pomeraju se od sredine atrijuma i dolazi do smanjenja istrujavanja vazduha iz donjih etaža, dok će se njegovo ulaženje u gornje povećati. (slika 3c)
U slučaju da se naprave oba otvora identično i u gornjoj i u donjoj polovini atrijuma, ili se on izduži po vertikali ravnomerno u oba smera, NNP će ostati na sredini visine i doći će do uravnoteženja raspodele pritisaka identično početnom slučaju. Usled slobodne cirkulacije vazduha u atrijumu, može se pretpostaviti da će doći do postepenog opadanja temperature ovog prostora i izjednačavanja sa spoljašnom, što će dalje usloviti povećanje nagiba linije razlike pritisaka usled povećane temperaturne razlike.
3.2 Uticaji vetra na atrijumske objekte
Na slikama 4, 5, 6, i 7 predstavljena je analiza uticaja vetra na atrijumski objekat pod pretpostavkom da u okruženju nema prepreka, da ne dolazi do smanjenja gustine vazduha sa porastom visine (mala visina objekta), da je intezitet pritiska identičan sa obe strane samo suprotnog zraka, da je brzina strujanja vazduha u podzemnom kanalu konstantna po čitavom objektu nehermetične, kao i da je raspodela pritiska na obodnim zidovima atrijuma ujednačena.
Na slici 4. prikazan je uticaj vetra na atrijumski objekat bez otvora, tj. bez promene visine atrijumskog prostora. Dejstvo vetra se odražava stvaranjem zona pozitivnog pritiska na otvorenoj strani, kao i negativnog na zaklonjenoj. Ova razlika pritisaka stvara potencijal cirkulacije vazduha kroz objekat po horizontali, kao i cirkulacije vazduha spolja po vertikali. Iz ovog se može zaključiti da je uticaj vetra, tj. njegovog strujanja u objekat i iz njega upravo srazmeran njegovoj brzini, odnosno visini posmatranog objekta.
Na slici 5. prikazan je uticaj vetra na atrijumski objekat sa otvorima tipa toranj (L toranj) na vrhu, dnu i vrhu i dnu istovremeno. U ovom slučaju dolazi do pojave povećanja brzine strujanja vazduha, tj. dinamičkog pritiska na samom otvoru, a smanjenja statičkog, što dalje prouzorkuje sniženje pritiska u samom atrijumu i pomeranje vazduha vertikalno u tom pravcu.
Kao posledica toga dolazi do promene u smeru horizontalne cirkulacije vazduha u donjem etažama zakljonjene strane zbog pojave pozitvnog umesto negativnog pritiska na spoljašnjem zidu, te i na tom mestu dolazi do ustrujavanja vazduha kao i do pojačanog strujanja na čitavoj otvorenoj strani objekta. Slika 5a ilustruje respodelu pritisaka u slučaju otvora na vrhu, dok slika 5b ilustruje slučaj sa otvorom na dnu.
Može se primetiti i da je pritisak u atrijumu sa istovremenim otvorima na vrhu i dnu dvostruko veći (negativan) u odnosu na onaj kada se otvor nalazi na vrhu ili samo na dnu. (19) (Slika 5c, otvor i na vrhu i na dnu)
Na slici 6. prikazan je uticaj vetra na atrijumski objekat sa otvorima tipa hvatač na vrhu, dnu istovremeno. U ovakvoj situaciji dolazi do smanjenja dinamičkog, a povećanja statičkog pritiska u hvataču, tj. nagomilavanju vazdušne mase koja počinje da se kreće vertikalno u atrijumu u pravcu nižeg pritiska, što dalje prouzrokuje stvaranje povišenog pritiska u njemu samom.
Kao rezultat novonastalog efekta vetra dolazi do promene u smeru horizontalne cirkulacije vazduha u donjim etažama otvorene strane, zbog pojave negativnog umesto pozitivnog pritiska na spoljašnjem zidu, te i na tom mestu dolazi do istrujavanja vazduha iz atrijuma, kao i do pojačanog na čitavoj zaklonjenoj strani objekta. (20) (Slike 6a sa otvorom na vrhu, i 6b sa otvorom na dnu).

U slučaju istovremenog postojanja otvora na vrhu i dnu, može se konstatovati da je pritisak u atrujumu dvostruko veći (pozitivan) u odnosu na pritisak pri postojanju otvora samo na vrhu ili samo na dnu. (Slika 6c, raspodela pritisaka sa otvorima i na vrhu i na dnu).
Na slici 7. prikazan je uticaj vetra na atrijumski objekat sa kombinacijom istovremenih otvora tipa toranj (L toranj) i hvatač. U ovom slučaju dolazi do uspostavljanja intezivnog, konstantnog i kontinualnog vazdušnog strujanja, tj. zahvatanja i odstranjivanja vazduha po čitavoj visini i profilu atrijuma, tj. promaje.
Kao rezultat može se pretpostaviti da se na obodnim zidovima atrijuma neće pojaviti razlika pritisaka, tj. neće biti pod uticajem ni pozitivnog, niti negativnog pritiska vazduha. (21) (Slika 7a ilustruje raspored pritisaka u atrijumskoj zgradi sa otvorom na vrhu i na dnu, slika 7b ilustruje raspodelu sa otvorom samo na dnu).
Iz priloženih analiza iz oblasti uticaja vetra na raspodelu pritisaka u zgradama može se konstatovati da primena atrijuma ima vrlo važnu ulogu.
Takođe se može primetiti da svaki građevinski objekat u skladu sa svojom konfiguracijom čini jedinstvo sa silama i okruženjem u kome se nalazi. Svojim adekvatnim prilagođavanjem delovanju vetra odgovarajućim sklopovima na vrhu i dnu atrijumskog prostora (toranj, L toranj i hvatač), kretanje vazduha oko i u samom objektu može biti stavljeno u funkciju poželjnog strujanja i u velikoj meri doprineti njegovoj prirodnoj ventilaciji.
U skladu sa potrebama uštede energije, primene njenih obnovljivih izvora, očuvanja životne sredine, značaja uticaja klimatskih faktora u arhitekturi i urbanizmu, kao i njenim novonastalim promenama, primena prirodne ventilacije i hlađenja sve više dobija u značaju.
Već postojeća temperaturna razlika unutrašnjeg i spoljašnjeg vazduha, kao i dejstvo vetra u toku eksploatacije objekta, direktno utiču na raspodelu pritisaka, pa tako i na uslove prirodne ventilacije i hlađenja zgrade. Svojim prisustvom u samom objektu, adekvatnim oblikom i prigođavanjem prirodnom procesu delovanja vetra, atrijum predstavlja izuzetan potencijal u funkciji prirodne ventilacije.
3.3 Kombinovanje sila termičkog efekta i vetra
Jedino što nam ostaje jeste da vidimo kako kombinovani uticaj termičkog efekta i vetra utiče na raspodelu pritisaka u zgradama sa atrijumima.
Kada se radi o jednozapreminskim prostorima, na grejanoj prostoriji sa ujednačnom perforacijom spoljašnjeg omotača odnosu na sredinu visine, bez otpora unutrašnjem strujanju vazduha i bez uticaja vetra, raspodela pritisaka je uslovljana temeraturnom razlikom, tj. razlikom specifične težine unutrašnjeg i spoljašnjeg vazduha, dok se NNP nalazi na sredini visine.

U gornjoj polovini prostorije dolazi do formiranja zone natpritiska sa tendencijom istrujavanja vazduha, dok se u drugoj polovini prostorije formira zona potpritiska sa tendencijom ustrujavanja vazduha. (Slika 8a, Klimatizacija grejanje hlađenje, broj 4., novembar 2001., str. 32)
Na istoj takvoj prostoriji koja nije grejana, a pri dejstvu vetra, može se smatrati da je raspodela pritisaka ujednačena po vertikali. Strana izložena vetru nalazi se u zoni povišenog pritiska – istrujavanja, što dovodi do kretanja vazduha kroz objekat. (Slika 8b, Klimatizacija grejanje hlađenje, skriptarnica arhitektonskog fakulteta, broj 4., novembar 2001., str. 32.)
U kombinovanom slučaju grejanog unutrašnjeg prostora i uticaja vetra, dolazi do sabiranja – superpozicije pritiska. Kao rezultat, dobija se dejstvo vetra koje uravnotežava efekat dimnjaka usled temraturne razlike, što uslovljava nepostojanje razlika pritisaka spoljašnjeg i unutrašnjeg vazduha na vrhu otvorene, kao i dnu zaklonjene strane.
Takođe se može zaključiti da je ukupno strujanje blisko strujanju izazvano samo vetrom, a mnogo intenzivnije od strujanja izazvanog samo efektom dimnjaka. (22) (slika 8c, Klimatizacija grejanje hlađenje, skriptarnica arhitektonskog fakulteta, broj 4., novembar 2001., str. 32)
Zastupljenost ovih komponenti u rezultanti, tj. infiltraciji zgrade, direktno zavisi od uticaja lokalnih parametra. Visina zgrade, njena izloženost i orijentacija u odnosu na delovanje vetra, njegova brzina i gustina, karakteristike okolnog terena, atmosferska temperatura, kao i temperatura samog okruženja, otpor efektu dimnjaka, tj. vertiklanom strujanju vazduha, odos perforacije fasade i otpor otvora strujanju vazduha, jesu parametri čije se redukcije moraju uzeti u obzir na konkretnom slučaju.(23)
Raspodela pritisaka prikazana na slici 8. Pokazuje da uticaju vetra i dimnjaka mogu biti kombinovani dodavanjem pritisaka. Međuim, ovim postupkom se može prouzrokovati promena pravca u rezultani strujanja, te se one ne mogu kombinovati tako jednostavno. Tačna superpozicija ova dva uticaja zahteva dodatno poznavanje oba polja pritiska.
Za tipične zgrade, sledeća jednačina se može koristiti za kombinovanje efekata dimnjaka i vetra:
- Qws = ( Qw2 + Qs2 ) 0.5 (24)
Gde su:
- Qws - zajednička infiltracija od uticaja vetra i dimnjaka, L/s
- Qw - infiltracija od vetra, L/s
- Qs – infiltracija od uticaja dimnjaka, L/s
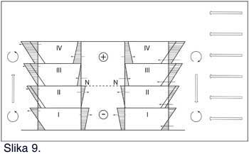
Na slikama 9, 10, 11, i 12 (Klimatizacija grejanje hlađenje, Srpski naučno stručni časopis, broj 2., maj 2002., str. 30-32.) predstavljena je analiza kombinovanih uticaja tempertaure (efekat dimnjaka) i vetra na atrijumski objekat u periodu dogrevanja zimi, tj. hlađenja tokom letnjih noći.

Pretpostavka je da u okruženju nema prepreka, da sa porastom visine brzina vetra raste, a gustina vazduha ostaje konstantna, da je intezitet pritiska indentičan sa obe strane objekta samo suprotnog znaka, da je brzina strujanja vazduha u podzemnom kanalu konstantna po čitavom njegovom profilu, da se pregrade u samom objektu nehermetične, kao i da je raspodela pritisaka na atrijumskim zidovima ujednačena.
Na slici 9. (Klimatizacija grejanje hlađenje, Srpski naučno stručni časopis, broj 2., maj 2002., str. 30.) prikazan je kombinovan uticaj temerature (efekta dimnjaka) i vetra na atrijumski objekat bez otvora, tj. bez promene visine atrijumskog prostora. Usled dejstva vetra dolazi do korigovanja dijagrama razlike pritisaka na spoljašnim zidovima, naastalih usled efekta dimnjaka.
Na otvorenoj strani objekta usled dejstva pozitivnog pritiska, tj. ustrujavanja vazduha srazmerno povećanju visine. Istovremeno, na zaklonjenoj strani objekta usled dejstva negativnog pritska dolazi do povećanja ugla između vertikale zida i linije azlike pritiska, tj. istrujavanja vazduha, takođe srazmerno povećanju visine.
Na slici 10a (Klimatizacija grejanje hlađenje, Srpski naučno stručni časopis, broj 2., maj 2002., str. 31.) prikazan je kombinovan utican temperature (efekat dimnjaka) i vetra na atrijmski objekat sa otvorom tipa toranj (L toranj) na vrhu. Usled izdizanja atrijuma iznad objekta i otvaranja otvora dolazi do povećanja efekta dimnjaka po visini atrijuma.
Takođe, usled dejstva vetra na samom otvoru dolazi do povecanja brzine strujanja vazduha, tj. dinamičkog pritiska, a smanjenja statičkog.

Ovakva situacija dalje prouzrokuje intezivno snižavanje pritiska u samom atrijumu sabiranjem ova dva efekta sa reakcijama istog smera vertiklanog kretanja vazduha, što dovodi do istrujavanja vazduha iz prostorija ka atrijumu po čitavoj njeogvoj visini. Na obodnim tidovima objekta dolazi do korigovanja razlike pritisaka, tj. na otovrenoj strani do pojave intezivnog pozitivnog pritiska i dominantnog ustrujavanja vazduha, a na zaklonjenoj do uravnoteženja pritiska, tj. ustujavanja i istrujavanja.
Na slici 10b (Klimatizacija grejanje hlađenje, Srpski naučno stručni časopis, broj 2., maj 2002., str. 31.) prikazan je kombinovan uticaj tempertaure i vetra na atrijumskim objekat sa otvorima tipa toranj (L toranj) na vrhu i dnu istovremeno. Usled izidizanja atrijuma iznad objekta i njeogvog upuštanja u podzemni kanal, kao i otvaranja otvora, dolazi do uravnoteženja efekta dimnjaka po visini atrijuma.
Takođe, usled dejstva vetra i strujanja vazduha u kanalu na samim otvorima dolazi do povećanja brzine strujanja vazduha, tj. dinamičkog pritiska, a smanjenja statičkog. Ovakva situacija dalje prozrokuje intezivno sniženje pritiska u samom atrijumu sabiranjem ova dva efekta sa reakcijaam suprotnog smera vertikalnog kretanja vazduha, što dovodi do istrujavanja vazduha iz prostorija ka arijumu po čitavoj njegovoj visni. Na obodnim zidovima objekta uspostavlja se raspodela pritiska i cirkulacija vazduha identična početnom slučaju 9, tj. na otvorenoj strani dolazi do preovladavanja pozitivnog pritiska i ustrujavanja vazduha, a na zaklonjenoj do preovladavanja negativnog i istrujavanja.
Na slici 10c (Klimatizacija grejanje hlađenje, Srpski naučno stručni časopis, broj 2., maj 2002., str. 31.) prikazan je kombinovan uticaj temperature (efekat dimnjaka) i vetra na atrijumski objekat sa otvorima tipa toranj „L“ na vrhu i dnu istovremeno. Usled izdizanja atrijuma iznad objekta i njegovog upuštanja u podzemni kanal, kao i otvaranja otvora, dolazi do uravnoteženja efekta dimnjaka po visini atrijuma.
Takođe, usled dejstva vetra i strujanja vazduha u kanalu na samim otvorima dolazi do povećanja brzine strujanja vazduha, tj. dinamičkog pritiska, a smanjenja statičkog. Ovakva situacija dalje prouzrokuje intenzivno snižavanje pritiska u samom atrijumu sabiranjem ova dva efekta sa reakcijama suprotnog smera vertikalnog kretanja vazduha, što dovodi do istrujavanja vazduha iz prostorija ka atrijumu po čitavoj njegovoj visini.
Na obodnim zidovima objekta uspostavlja se raspodela pritisaka i cirkulacija vazduha identična slučaju 10a, tj. na otvorenoj strani dolazi do pojave intenzivnog pozitivnog pritiska i dominantnog ustrujavanja vazduha, a na zaklonjenoj do uravnoteženja pritiska, tj. ustrujavanja i istrujavanja. (25)
Na slici 11a (Klimatizacija grejanje hlađenje, Srpski naučno stručni časopis, broj 2., maj 2002., str. 31.) prikazan je kombinovan slučaj temerature (efekat dimnjaka) i vetra na atrijumski objekat sa otvorom tipa hvatač na vrhu. Usled izdizanja atrijuma iznad objekta i otvaranja otvora,dolazi do povećanja efekta dimnjaka po visini atrijuma.

Takođe, usled dejstva vetra u samom otvoru dolazi do smanjenja brzine strujanja vazduha, tj. dinamičkog pritiska, a povišenja statičkog. Ovakva situacija dalje prouzrokuje uravnoteženje pritiska u samom atrijumu anuliranjem ova dva efekta sa reakcijama suproenog smrea vertikalnog kretanja vazduha, što dovodi do podjednakog ustrujavanja i istrujavanja vazduha u prostorijama ka atrijumu po čitavoj njegovoj visini.
Na obodnim zidovima objekta usopstavlja se rasopdela pritiska i cirkulacija vazduha identična početnom slučaju 10a, tj. na otvorenoj strani dolazi do preovlađanja pozitivnog pritiska i ustrujavanja vazduha, a na zaklonjenoj do preovladanja negativnog i istrujavanja. (26)
Na slici 11b (Klimatizacija grejanje hlađenje, Srpski naučno stručni časopis, broj 2., maj 2002., str. 31.) prikazan je kombinovan uticaj temerature i vetra na atrijumski objekat sa otvorom tipa hvatač na dnu. Usled upuštanja atrijuma u podzemni kanal i otvaranja otvora, dolazi do smanjenja efekta dimnjaka po visini atrijuma.
Takođe, usled strujanja vazduha u samom otvoru u kanalu dolazi do smanjejna brzine strujanj vazduha, tj. dinamičkog pritiskaa, a povišenja statičkog. Ovakva situacija dalje prouzrokuje intezivno povišenje pritiska u samom atrijumu sabiranjem ova dva efekta sa reakcijama istog smera vertikalnog kretanja vazduha, što dovodi do ustrujavanja vazduha u prostorije iz atrijuma po čitavoj njegovoj visini.
Na obodnim zidovima objekta dolazi do korigovanja razlike pritiska, tj. na otvorenoj strani do ursvnoteženja pritiska – ustrujavanja i istrujavanja, a na zaklonjenoj do pojave intezivnog negativnog pritiska i dominantnog istrujavanja (27)
Na slici 11c (Klimatizacija grejanje hlađenje, Srpski naučno stručni časopis, broj 2., maj 2002., str. 31.) prikazan je kombinovan uticaj temperature i vetra na atrijumski objekat sa otvorima tipa hvatč na vrhu i dnu istovremeno. Usled izdizanja atrijuma iznad objekta i njeogvog upuštanja u podzemni kanal, kao i otvaranja otvora, dolazi do uravnoteženja efekta dimnjaka po visini atrijuma.
Takođe, usled dejstva vetra i strujanaj vazduha u kanalu dolazi do smanjenja brzine strujanja vazduha, tj. dinamičkog pritiska u samim otvorima, a povišenja statičkog. Ovakva situacija dalje prouzrokuje intezivno povišenje pritiska u samom atrijumu sabiranjem ova dva efekta sa reakcijama suprotnog smera vertikalnog kretanja vazduha, što dovodi do ustrujavanja vazduha u prostorije iz atrijuma po čitavoj njegovoj visni.
Na obodnim zidovima objekta se uspostavlja raspodela pritiska i cirkulacija vazduha identična prethodnom slučaju 4b, tj. na otvorenoj strani dolazi do uravnoteženaj pritiska – ustrujavanja i istrujavanja, a na zaklonjenoj do pojave intezivnog negatovnog pritiska i domninantnog istrujavanja. (28)
Na slici 12 a i b prikazan je kombinovan uticaj temeprature i vetra na atrijumski objekat sa otvorima tipa toranj (L toranj) i hvatač na vrhu i dnu istovremeno. Usled izdizanja atrijuma iznad objekta i njegovog upuštanja u podzemni kanal, kao i otvaranja otvora, dolazi do uravnoteženja efekta dimnjaka po visini atrijuma.
Takođe, usled dejstva vetra i strujanja vazduha u kanalu dolazi do povećanja brzine strujanja vazduha, tj. dinamičkog pritiska, a sniženja statičkog na samom otvoru tipa toranj (L toranj), koa i smanjenja brzine strujanja vazduha, tj. dinamičkog ptitiska, a povišenja statičkog u samom otvoru tipa hvatač.
Ovakva situacija dalje prouzrokuje intezivno, konstantno i kontiualno strujanje vazduha, pored njegovog zahvatanjai odstranjivanja, po čitavoj visni i profilu atrijuma, tj. efekat promaje. Kao rezultat, može se pretpostavljati da će se na zidovima atrijuma doći do nestanka postojeće razlike pritiska nastale usled efekta dimnjaka, tj. da neće biti pod uticajem niti pozitivnog, niti negativnog pritiska vazduha. (29)
Na osnovu dosadašnjeg sagledavanja uticaja teramičkog efekta i vetra na raspodelu pritisaka u zgradama, tj. njihovu ventilaciju, može se zaključiti da postoji intezivna i direktna međuzavisnost između građevinskog objekta u prostoru i faktora od uticaja u okruženju.
Utorošena sunčeva energija za zagrevanje vazduha, dodatna energija za njegovo zagrevanje po potrebi, kao i energija vetra, mogu se takođe iskoristiti i za odstranjivanje istoršenog vazsuha, tj. prirodnu ventilaciju, kao i pasivno hlađenje tokom letnjih noći.
Atrijum u sklopu zgrade predstavlja na samo arhitektonsko-gređevinski oblik, već i energetski potencijal za kontrolu uticaja termičkog efekta i vetra na sam objekat. Svojim oscilovanjem po visni i adekvatnim prilagođavanjem delovanju vetra odgovarajućim sklopovima na vrhu i dnu (toranj, L toranj i hvatač), on direktno utiče na raspodelu pritisaka u celoj zgradi. Na taj način može biti stavljen u funkciju poželjnog strujanja vazduha i u velikoj meri direktno uticati na uslove njegove prirodne ventilacije.





























;