Kwong Von Glinow Design Office je pobedio na takmičenju pod nazivom „New York Affordable Housing Challenge“. Projekat je odgovorio na prioritet koji je gradonačelnik Njujorka de Blasio postavio a to je stvaranje pristupačnijih objekata za stanovanje u Njujorku, kako na novim lokacijama tako i renoviranjem objekata na postojećim. Kriza u oblasti stanogradnje je u poslednje dve decenije vidljiva i ogleda se u sve većoj pojavi socijalno različitih gradova. Samo u Njujorku većina stanovnika troši više od polovine svojih godišnjih prihoda na iznajmljivanje stanova. Kwong Von Glinow Design Office nudi stambeno rešenje zasnovano na modularnom sistemu „table top", koji je zasnovan na „gomilanju i slaganju“. Suština je da se na što manjem prostoru dobije što veća raznolikost stambenog prostora a otuda i ovaj prototip za pristupačnu stanogradnju u Njujorku. Sistem nije samo fleksibilan kada je u pitanju prilagodnjivost različitim veličinama objekata već i različitim kombinacijama unutar stambenih jedinica.

Slika 1. „Table Top Apartments“ (foto: Kwong Von Glinow Design Office, preuzeto sa www.worldarchitecturenews.com)
Nagrade su dodeljene u okviru „New York Build Expo 2017“ koji je održan u „Javits“ centru. Lap Chi Kwong i Alison Von Glinow, suosnivači Kwong Von Glinow Design Office, predstavili su svoje pobedničko delo u okviru „Expo“. Predlog za „Table Top Apartments“ predstavljen je uz pomoć alata za vizuelizaciju korišćenjem virtuelne stvarnosti dočarane uz pomoć „Vividly“ na „Expo“. Omogućeno je posetiocima da hodaju oko vertikalnih dvorišta stanova noseći naočare za VR .

Slika 2. „Table Top Apartments“ (foto: Kwong Von Glinow Design Office, preuzeto sa www.worldarchitecturenews.com)
Lap Chi Kwong i Alison Von Glinow su osnovali Kwong Von Glinow Design Office u Čikagu 2016. Godine. Oba partnera imaju zvanje Masters of Architecture sa Harvard University Graduate School of Design. Oni su radili za Herzog & de Meuron u Bazelu, Wang Shua u Hangdžou, SOM u Čikagu i Njujorku, i Toshiko Mori Architect u Njujorku pre nego što su otvorili svoju firmu. Njihova firma je dobila nagradu „2016 Chicago Prize“ koju dodeljuje Chicago Architecture Club. Njihova firma trenutno radi na nekoliko projekata u Čikagu i Hong Kongu.

Slika 3. „Table Top Apartments“ (foto: Kwong Von Glinow Design Office, preuzeto sa www.worldarchitecturenews.com)
Opis projekta
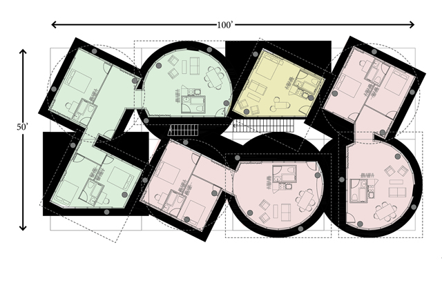
„Table Top Apartments“ koristi sistem modula koji se bazira na principu slaganja ploča stolova, u cilju izgradnje pristupačnih stanova sa oko 4 sprata, pristaništa, kule sa kaskadnim balkonima, pa čak i superblokova. Ovaj sistem pod nazivom „table top“ nije samo fleksibilan u smislu prilagođavanja različitim objektima već i različitim kombinacijama unutar samih stambenih jedinica.

Slika 4. „Table Top Apartments“ (foto: Kwong Von Glinow Design Office, preuzeto sa www.worldarchitecturenews.com)
„Table Top Apartments“ proizilazi iz upotrebe nekoliko jednostavnih modularnih elemenata koji se spajaju u cilju kreiranja stambenih jedinica i novog načina života između stanovnika, njihovih komšija i okoline. Koncept modula je ideju našao u stolu koji ima četiri nogare, a sistem se zaniva na ploči stola. Gornja strana stola ili ploča može biti u obliku kruga, kvadrata ili trougla, dok nogare stola ili u ovom slučaju stubovi daju stabilnost konstrukciji zgrade i vertikalnom prostoru. Ovi elementi (ploče) su postavljeni tako da stvaraju različite kombinacije stambenih jedinica i naglašavaju različitost uparenu sa zbijenošću. Na ovakav način se doprinosi stvaranju zdrave i održive životne sredine. Jednostavan sistem zastakljenja nalazi se između unutrašnjih jedinica i eksterijera, dok su privatne prostorije i kupatilo „zatvoreni“ u okviru drvenih kabina.

Slika 5. „Table Top Apartments“ (foto: Kwong Von Glinow Design Office, preuzeto sa www.worldarchitecturenews.com)
Korišćenje tri različita oblika stola, koji su namerno asimetrično složeni, stvaraju otvore u ploči između stambenih jedinica. Rezultat je vertikalni dvorišni prostor koji predstavlja zonu slobodnog kretanja koja donosi svetlo i vazduh. Prostorna kompozicija u okviru „Table Top Apartments“ generiše novi način života u okviru pristupačnije stambene izgradnje.

Slika 6. „Table Top Apartments“ (foto: Kwong Von Glinow Design Office, preuzeto sa www.worldarchitecturenews.com)































;