Ovo je generalna obnova zdanja iz 1960-te godine, i njoj je zbog dotrajalosti bila potrebna totalna restauracija. Da bi se stvorili uslovi za ispunjavanje potreba savremene porodice, reorganizacija je bila neophodna, tako da je iznova definisan i odnos objekta u okviru konteksta.

Intervenciji se pristupilo kroz dve faze, prva datira iz 2007, a poslednja iz 2012. godine i tada je kuća dobila još jednu etažu. Veći deo prvobitne građevine je promenjen. Jedino preostalo od originala je noseća konstrukcija, premda je čak i ona dorađivana – tamo gde su to izmene projekta zahtevale. Nakon svega, ovaj projekat je prerastao u nešto sasvim novo.

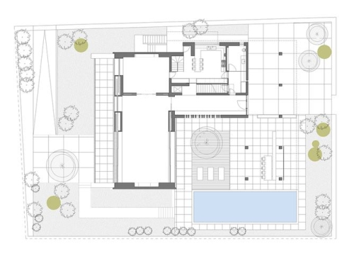
Tokom oblikovanja, pojavile su se nove okolnosti koje su morale biti uvažene. Prvo: proširenje objekta, dodavanjem dve sobe, na svakoj etaži po jedna. Neke od manjih soba su izgubile pregradne zidove, da bi prostor objedinjavanjem postao veći i prostraniji. Drugo: jedan nivo je dodat preko konstrukcije kuće, tako da je osnova izmenjena, a samim tim i namene prostorija.

Najveći naglasak dat je na samu ulaznu zonu, tako što se posetilac postepeno uvlači sa javnog u poluprivatni, pa privatni prostor. Zbog toga je osmišljen dugačak i prostran hodnik, u kojem se smenjuju otvorene i natkrivene celine različitih visina, sa upečatljivim vertikalnim prosecima kroz masu zida, koji vodi sve do samog središta enterijera.

Rasveta unutar hodnika je dramatična, a geometrija jednostavna i nekako asketska, materijali variraju od belutaka do uzoraka drveta. Konačno – unutrašnji otvori naglašavaju odnos koji kuća uspostavlja sa okruženjem, baš kao što se i atrijumom u centru prostor uvećava ka gornjim etažama. Njemu (atrijumu) pridodat je i bazen, neke natkrivene zone, kao i zelenilo, sve da bi se unapredio kvalitet života i dnevna dinamika u ovom domu.

Prvi nivo obogaćen je privatnim dvorištem kojim dominira pun vizuelni kontakt sa većim delom bašte i atrijumom. Kao deo ulaznog koridora, dvorište je definisano drvenim materijalom u zoni enterijera, da bi se potom pretočilo u zaobljeni kamen kako se sve više izlaže eksterijeru.

Spoljne ravni poseduju posebna drvena platna na prozorskim otvorima, da bi izgled fasade imao kontinuitet, a isti motiv ponovljen je i na metalnim sekvencama ograde. Preostali primenjeni materijali su: gips, staklo, mermer i inoks.
Atmosfera je ispunjena mirom i svedenošću kako enterijera, tako i eksterijera, a to je postignuto naglašenom primenom svetlih boja i nijansi: belom, bež i sivom, ali i korišćenjem materijala sa prirodnom, neizmenjenom teksturom.

Više o projektu:
Projektni biro: ISV Architects
Lokacija: Kifisia, Grčka
Autor projekta: Alexander Van Gilder
Glavni i odgovorni projektant: Daniela Stanković
Godina realizacije: 2012.
Fotografije: Erieta Attali
Projekat konstrukcije: ISV Construct
Menadžer: Iasonas Kavallinis






























;