Tornado može da razruši tipičanu kuću od drvene konstrukcije koje su uobičajne za Severnu Ameriku za samo četiri sekunde. U prvoj sekundi, tornado razbija prozore i razrušava fasadu. Zatim vazduh ulazi kroz razbijene prozore, ispod vrata i bilo koji drugi otvor, stvarajući pritisak u kući koji razvaljuje krov. U trećoj sekundi, bez krova, zidovi padaju. Do četvrte sekunde, sve u kući - uspomene, knjige, nameštaj - je oduvano.

Brzina tolike razorne sile predstavlja ozbiljno projektno pitanje za zajednice kao što je Džoplin u Mizuriju, SAD, koje su uništene od strane tornada: Kako projektovati kuću otpornu na tornado koja ne izgleda kao bunker, a može da pruži zaštitu za vreme te četiri užasne sekunde?
Ta napetost između otpornosti naših domova i mogućstva življenja u njima je inherentna na koje načine se mi pripremamo za sve vrste katastrofa: sve češći uragani, poplave, zemljotresi.
„Ako napravite savršeni objekat otporan na zemljotres, to bi bio bunker sa zidovima debljine od 60 santimetara i jednim malim čeličnim vratima“, kaže kalifornijski arhitekta Majkl Vilis (Michael Willis). Ta struktura bi bila zasnovana na empirijskim proračunima građevinskih inženjera. „Možete je projektovati da bude savršeno otporna, ali to ne bi bilo mesto gde biste vi želeli da živite.“
Izazov projektovanja posle katastrofa, ili sa mišlju o njima u procesu projektovanja, jeste izbalansirati sa ovim, izgraditi bezbedno mesto gde će ljudi zaista želeti da žive.
To je bio zadatak iza takmičenja „Designing Recovery“, sponzorisano od strane Američkog instituta arhitekata (AIA), projekata Make it Right, St. Bernard Project i Architecture for Humanity, čiji su pobednici objavljeni početkom oktobra (Arhitekta Vilis je bio predsednik žirija).
|
|
|
Od juna su se arhitekte trudile da stvore novo stambeno rešenje za zajednice koje su doživele tri veoma različite katastrofe: tornado u Džoplinu iz 2011. godine, uragan Katarina u Nju Orleansu, i superoluja Sendi u Njujorku. Takmičenje ima za cilj da zaista izgradi pobednička rešenja, za svaki grad izabrano po jedno, uz pomoć volontera i doniranih sredstava i materijala.
Kao način odbrane od poplava, pobednički projekti za Njujork (gore levo) i Nju Orleans (gore desno) biroa Sustainable.TO Architecture and Building i GOATstudio LLP predstavljaju energetske efikasne domove koji su povišeni iznad zemlje.
Ali, ono što je posebno intrigantno jeste pobednik za Džoplin, prikazan na fotografiji skroz iznad, koji se suočio sa veoma drugačijim problemom u delu zemlju gde geologija čini nemogućim izgradnju podruma za zaštitu od tornada.
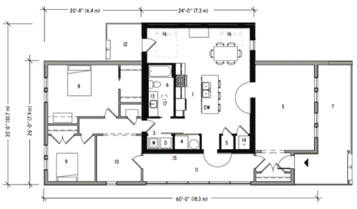
Arhitektonski biro Q4 Architects je projektovao siguran prostor unutar kuće umesto skloništa ispod nje, neka vrsta kuće u kući. Rezultat je ideja koja bi se mogla ponoviti bilo gde u područjima koje su u opasnosti od tornada: Ojačno, skoro neuništivo betonsko jezgro od 55 kvadratna metara, sa žaluzinama i vratima otpornim na jake udare vetra gde bi porodica bez problema mogla da preživi tornado. Oko ovog jezgra je projektovano nekoliko fleksibilnih (i pristupačnih) prostorija koje čine ostatak kuće.

U goreprikazanom projektu prizemlja, prikazano je ono o čemu smo pričali. Porodica i dalje dobija svoj prednji trem (broj 7), dnevnu sobu ispunjenu sa dnevnom svetlosti (broj 5), provetreni hodnik i krilo sa spavaćim sobama u zadnjem delu. Ali, kada se tornado približava, stanari mogu da se povuku u jezgro gde postoje privremeni kreveti, kuhinja, kupatilo, pristup pomoćnim sistemima i teška anti-tornado vrata.
„Ovakav pristup je najbolje rešenje koje smo osmislili u datim okolnostima za borbu protiv tornada“, kaže arhitekta Elizabet Džordž (Elizabeth George) iz biroa Q4 Architects. „Deo kuće tokom tornada može biti uništen, ali najvažniji delovi kuće su bezbedni. Posle katastrofe, nije sve izgubljeno. U stanju ste da sačuvate najvažnije stvari, a to su ljudi, funkciju kuće, a možda čak i vaše dragocenosti.“
Genijalnost ove ideje je da bi bilo znatno skuplje napraviti iste mere predostrožnosti u celom domu (CORE kuća, kao i svaki od dobitnih projekta, mora biti izgrađen za manje od 50.000 dolara). A, šanse su i da se izgradi objekat u potpunosti otporan na tornada, vi ne biste želeli da živite u njemu. Umesto toga, kuće raznih arhitektonskih stilova mogu biti obmotane oko takvog sigurnog prostora.
Ideja zarobljava ravnotežu između otpornosti objekata i životnim uslovima koja bi trebalo da bude ugrađena u naša razmišljanja o načinima na kojima se pripremamo za bilo koju prirodnu katastrofu, koje u budućnosti mogu biti još češće.


































;