Hegeman, projektovan od strane Cook + Fox arhitektonskog biroa, je stambena zajednica u Bruklinu, koja obezbeđuje smeštaj za osobe sa niskim prihodima i beskućnike.

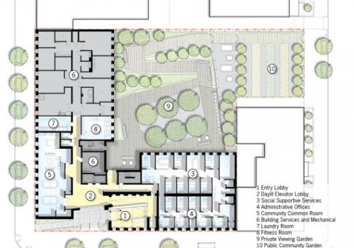
Hegeman se nalazi na mestu bivšeg parkinga, popunjavajući prazninu između ulica zida i postojećih kuća. Skromnih šest spratova zgrade je veoma pažljivo planirano. Arhitekte su koristile teksturalnu artikulaciju u fasadi kako bi dodali vizuelni život zgradi. Dodata dubina fasadne cigle je "promišljena ali ipak ekonomična" i daje eleganciju zgradi. Veliki prozori uokviruju jedan ulaz u zgradu duž Avenije Hegeman. Vizuelne veze između ulice i unutrašnjeg dvorišta prave ulaz dobrodošlice, naglašen biljakama i zelenim prostorom u okviru zgrade.

Hegeman je deo zelene kampanje koja ima zajedničku osnovu za zdrav život, ističući se kroz zdravlje i kvalitet unutrašnjeg vazduha. Stanari imaju pogled na zelene površine i pristup prirodnom dnevnom svetlu, čak i u nastavku kvalitetnog kancelarijskog prostora. Unutrašnje dvorište pruža priliku za razvoj urbanih farmi i daje zaštićeni prostor za stanovnike svih uzrasta kako bi mogli da uživaju u pejzažu.

Objekat je projektovan energetskom efikasnošću u vidu unosa i aktiviranja kontrolnog sistema i pojedinačnih soba - za merenje sposobnosti daje se kontrola nad korišćenjem energije. Infrastruktura je postavljena za buduću saradnju generacije sistema. Oko 3.400 kvadratnih metara zelenila na krovu hladi zgradu. Solarni paneli se takođe nalaze na krovu radi spoljašnjeg osvetljenja. Individualne jedinice su izgrađene izdržljivim, netoksičnim materijalima, projektovane da štede energiju i vodu. Ove mere mogu omogućiti zgradi da dobije očekivan LEED Silver sertifikat.
Linkovi:
Povezani tekstovi:





























;