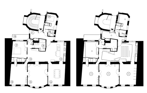
Britanski arhitekta Aleks Graef (Alex Graef) kombinovao je dva art deco apartmana u Beču kako bi stvorio stan sa čistim belim zidovima, restaurisanim hrastovim podovima i nizom veštačkih svetlarnika. Aleks Graef je renovirao dva devetnaestovekovna apartmana da bi stvorio povremeni dom za kolekcionara umetnina. Arhitekta je projektovao niz svetlih prostora sa velikim otvorenim zidovima i ugrađenim policama radi stvaranja prostora za kačenje slika i prikazivanje malih skulptura.

Jedna strana prebivališta sadrži spavaću sobu, biblioteku i kuhinju, dok druga strana smešta dnevnu sobu, trpezariju i radnu sobu. Niz prekolumbijskih skulptura je raspoređeno širom apartmana radi vezivanja prostora zajedno u celinu. Skulpture su sem položajem, dodatno naglašene sa tačkastim osvetljenjem.
|
|
|
„Sloj usmerenog osvetljenja ističe skulpture, od kojih je svaka vidljiva iz pozicije druge, i na taj način usmerava protok kroz prostor“, rekao je arhitekta Graef. Više osvetljenja se nalazi u okviru tri izrezaka u plafonu iznad kuhinje, stvarajući efekat niza svetlarnika.

„Veštački svetlarnici i duboko usečena prigušiva rasveta na plafonu pružaju osnovne uniformisane nivoe osvetljenja u prostoru“, dodao je arhitekta. Originalni pod od hrastovog parketa je restauiran na jednoj strani apartmana, dok druga strana ima novi teraco pod.
|
|
|
Klizna vrata između soba su presvučena u belu tkaninu sa šarom. Kupatilo se nalazi iza novododatih pregrada i karakteriše ga zidovi obloženi tamnim pločicama koji daju kontrasr sa svetlo belom bojom ostatka apartmana.

































;